OBSERVERA! Ingen ny data samlas från lulebo (detaljer).

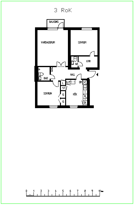
Malmuddsvägen 9 - 3 rok

Område: Malmudden
Rooms:  3
Area:   78
Rent:   5925 kr/mån
Våning: 3
ID:     150025

Boka senastAntal bokadePoäng
2015-12-292374892