OBSERVERA! Ingen ny data samlas från lulebo (detaljer).

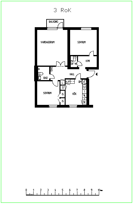
Malmuddsvägen 25 - 3 rok

Område: Malmudden
Rooms:  3
Area:   78
Rent:   5840 kr/mån
Våning: 1
ID:     150073

Boka senastAntal bokadePoäng
2014-04-232684620
2015-11-233755166