OBSERVERA! Ingen ny data samlas från lulebo (detaljer).

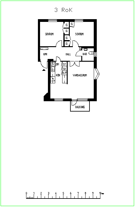
Malmuddsvägen 35 - 3 rok

Område: Malmudden
Rooms:  3
Area:   68
Rent:   5175 kr/mån
Våning: 3
ID:     150291

Boka senastAntal bokadePoäng
2015-05-252734807