OBSERVERA! Ingen ny data samlas från lulebo (detaljer).

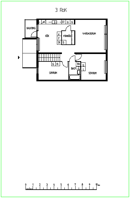
Hemängsvägen 22 A - 3 rok

Område: Sunderbyn
Rooms:  3
Area:   83
Rent:   5415 kr/mån
Våning: 1
ID:     2420028

Boka senastAntal bokadePoäng
2014-04-03663452
2014-05-191494011