OBSERVERA! Ingen ny data samlas från lulebo (detaljer).

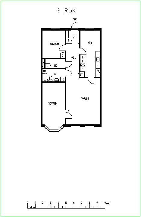
Köpmangatan 25 - 3 rok

Område: Centrum
Rooms:  3
Area:   92
Rent:   7617 kr/mån
Våning: 3
ID:     520009

Boka senastAntal bokadePoäng
2016-06-062565724