OBSERVERA! Ingen ny data samlas från lulebo (detaljer).

Punktvägen 3 - 2 rok

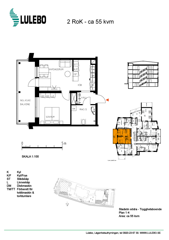
Område: Gammelstad
Rooms:  2
Area:   55
Rent:   6732 kr/mån
Våning: 2
ID:     780428

Boka senastAntal bokadePoäng
2015-08-31292714