OBSERVERA! Ingen ny data samlas från lulebo (detaljer).

Punktvägen 3 - 1 rok

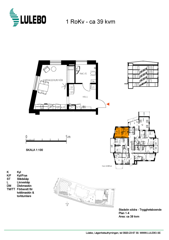
Område: Gammelstad
Rooms:  1
Area:   39
Rent:   4705 kr/mån
Våning: 2
ID:     780429

Boka senastAntal bokadePoäng
2015-08-3160